- ADDRESS:
- 5588 N 88TH AVE Camas, WA 98607
- VIDEOS:
- Virtual Tour Print this Listing
- Price:
- $917,900
- Beds:
- 4
- Baths:
- 3.0
- Ft²:
- 3249
- Acres:
- 0.17
- MLS#:
- 738737601
- Lot Size:
- 7,000 to 9,999 SqFt
- Type:
- Detachd
- County:
- Clark
- Style:
- 2 Stories
- Yr Built:
- 2026
- Status:
- Active
- Levels:
- 2
- Garage:
- Attached
- Nhood/Bldg:
- CAMAS HEIGHTS
- Heat:
- Forced Air - 95+%, Heat Pump
- Fireplace:
- Electric
- Roof:
- Composition
- Accessibility:
- Main Floor Bedroom w/Bath, Walk-in Shower
- View:
- Seasonal, Territorial
- Elem:
- Lacamas Lake
- Middle:
- Liberty
- High:
- Camas
- Lot Desc:
- Level, Private
- Area:
- Camas City Limits
- Exterior:
- Sprinkler, Yard
- Courtesy of:
- Lennar Sales Corp
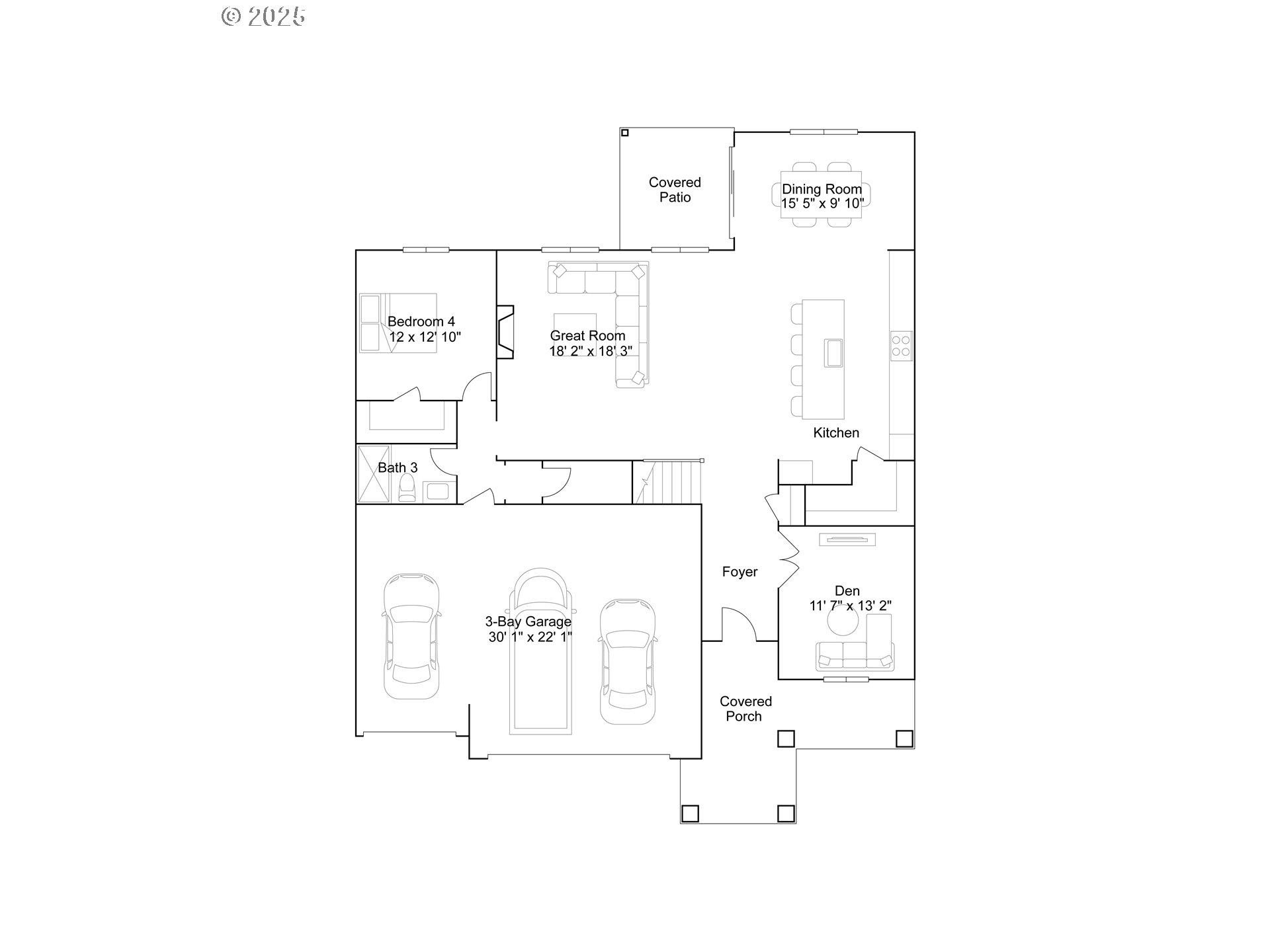
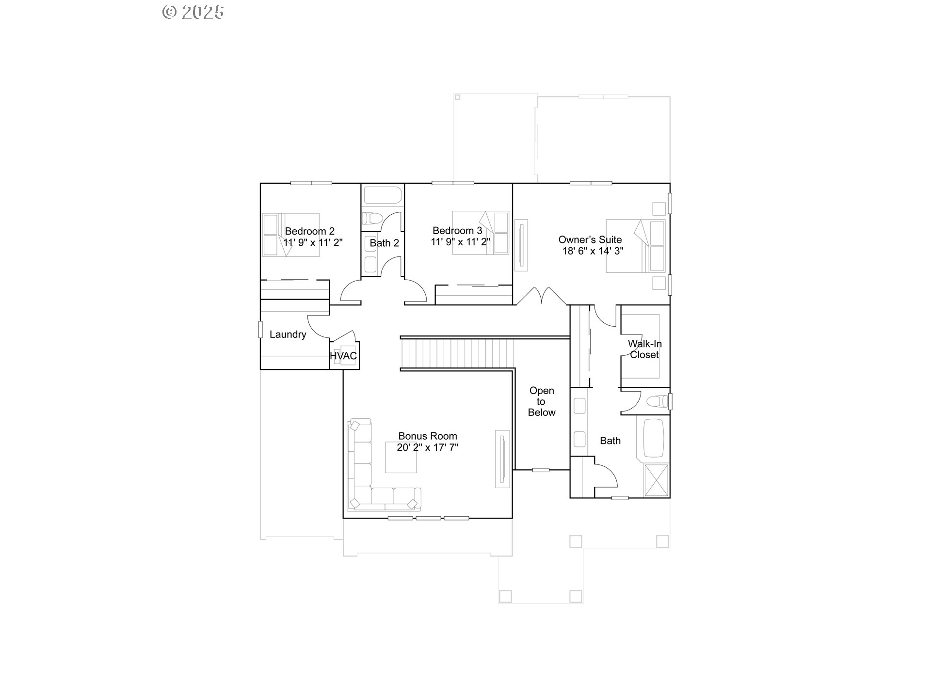
- Remarks:
- South facing backyard! View! is located in a quiet community just minutes from PDX and within the highly desirable Camas School District, close to Lacamas Lake, Camas Meadows Golf Course, and shopping and dining in downtown Camas. The Rochester plan features a den off the foyer and a spacious open-concept design where the kitchen, dining, and living areas connect to a covered patio. A secondary bedroom is tucked near the main living area, while upstairs a versatile bonus room is located near three additional bedrooms, including the primary suite with a private bath featuring quartz countertops, a separate tub and shower with tile surrounds, and a clear frameless glass shower enclosure. Interior highlights include quartz countertops in the kitchen and baths, shaker-style cabinets, a picket-style tile backsplash in the kitchen, LVP flooring in the kitchen and entry, LVT flooring in the baths and laundry, and matte black fixtures and hardware throughout. Wooden shelving is included in closets and pantry, with landscaping and fencing also provided. A spacious three-car garage adds extra storage and convenience. This home also includes central air conditioning, a refrigerator, washer and dryer, and blinds—all at no extra cost! Located on homesite 21, this home is expected to be complete Spring 2026. Rendering is artist conception only. Photos are of a similar home, features and finishes will vary. Flex credit/closing cost incentive available when financing with preferred lender! Use towards rate buydown and closing costs.



























